MJX RC F-45 Můj první vrtulník.

F - 45 Prodělala upgrade na střídavé motory
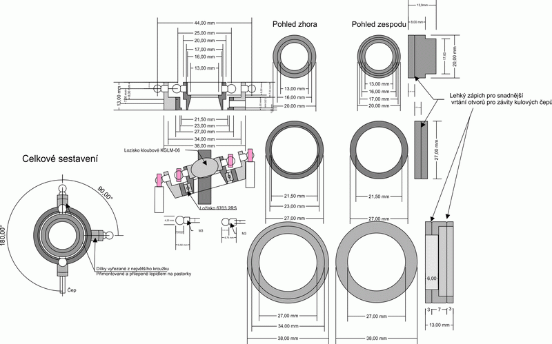
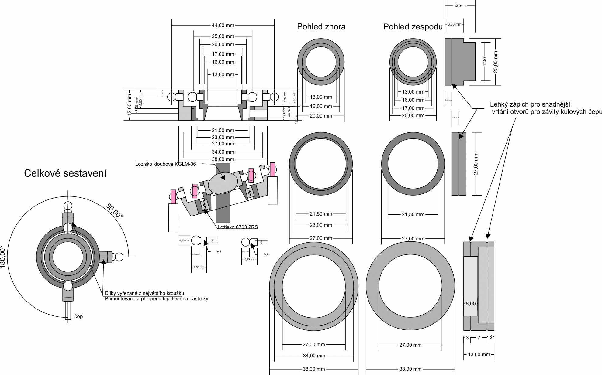
Doma vyrobená cyklika pro vrtulník MJX RC F-45








Po nasazení této cykliky nelétal model rovně dopředu, ale šikmo doleva.
Bylo nutné pootočit unášeč táhel proti smyslu otáčení hlavního rotoru aby se správně načasovalo klopení listů rotoru.
Když se natočí FlyBar do podélné osy stroje, musí být kulový čep táhla které
naklápí listy hlavního rotoru v nejvyšším bodě cykliky,
tedy
u kulového čepu serva které ovládá let vpřed a vzad. To samé platí pro bočení, když je FlyBar kolmo na
podélnou osu stroje,
měl by být kulový čep který naklápí list rotoru u čepu serva pro bočení.





A tady je verze s otočeným ovládáním cykliky. Zadní servo posazeno o
5 mm doprava, aby páka serva vylezla ven ze šasi stroje, proto je vystřižen kousek šasi pro průchod páky serva.
Bočnímu servu se otočí páka o 180°a změní smysl otáčení přepojením konců trimru a přepólováním motorku
uvnitř serva.
Tímto umístěním servomotorků jsem docílil toho, že nemusím být pootočen unášeč táhel
z cykliky na rotorovou hlavu,
táhla vychází rovnoběžně s osou hlavní hřídele a stroj létá rovně.




Po tomto upgrade (přemístění servomotorků) jsem ještě přemaloval výkres.
Volný čep cykliky je teď přímo proti kulovému čepu bočního serva a ovládací čepy
cykliky jsou v úhlu 90°.
Toto uspořádání jsem okoukal od mikrovrtulníku WLtoys V911.
Kliknutím na obrázek dostanete výkres ve větším rozlišení.
Soubor výkresu pro COREL stáhnete zde.
Kloubové ložisko KGLM 06 se dá objednat zde při dvou kusech vyjde asi na 150,- Kč.
Hlavní ložisko 6703 2RS objednáte třeba zde.
25. 1. 2014
Je tady konečně úprava s cyklikou 90°a oběma servomotory vzadu.
K tomu bylo potřeba upravit ještě pravou postranici (na fotografii horní díl), jedná se o
vypilování levého dolního rohu ve středním otvoru tak, aby nebránil páce serva v pohybu
dolů.

Serva bylo nutno upravit oříznutím úchytů tak, aby se vešla do původních držáků.




Obě serva se vedle sebe přesně vejdou, jak kdyby to na tuto montáž bylo připraveno :-)



Při bočení se volný čep pohybuje pouze směrem nahoru a dolu ve vodícím elementu.


Při klonění cykliky vpřed a vzad se volný čep pouze protáčí ve vodícím elementu.




Dotazy pište na mike@mikesound.com, nebo telefonicky na čísle 608 065 376.